Descrição
Manual de Serviço Escavadeira Komatsu PC200-8 / PC200LC-8 / PC240LC-8 — arquivo PDF com 1.123 páginas em Português, incluindo procedimentos verificados pelo fabricante, valores de torque e esquemas elétricos.
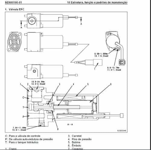
Cobre máquinas das séries PC200-8 B31331-UP, PC200LC-8 B30001-UP e PC240LC-8 B10001-UP. Exemplos de especificações incluídas: torque do bujão de coleta de pressão do combustível 24 ± 4 Nm, resistência do sensor de temperatura do óleo hidráulico 3,5–90 kΩ. Formato PDF pesquisável para localização rápida por sistema ou procedimento.
Especificações do Manual
- Marca: Komatsu
- Modelo: PC200-8 / PC200LC-8 / PC240LC-8
- Tipo: Escavadeira
- Páginas: 1.123
- Tamanho: 132 MB
- Idioma: Português
- Formato: PDF Pesquisável
- Série: PC200-8 B31331-UP / PC200LC-8 B30001-UP / PC240LC-8 B10001-UP
Procedimentos e Sistemas Cobertos
Sistema hidráulico principal, bombas e motores hidráulicos, motor e sistemas auxiliares, válvulas de controle, material rodante, sistema de giro, lança e braço, sistema de combustível, sistema elétrico e diagnóstico.
Para Quem é Este Manual
Indicado para mecânicos de campo, oficinas especializadas em linha amarela, concessionárias Komatsu, construtoras e mineradoras que precisam de procedimentos verificados para executar reparos com segurança.
Manual de Serviço vs Catálogo de Peças
Este manual é ideal para executar reparos — contém procedimentos passo a passo, valores de torque e diagnóstico de falhas. Para identificar e comprar peças, veja o Catálogo de Peças PC200-8 / PC200LC-8.
Perguntas Frequentes
Inclui especificações técnicas?
Sim, todos os procedimentos incluem valores de torque, folgas, pressões e tolerâncias conforme especificação do fabricante.
Tem procedimentos de diagnóstico?
Sim, o manual inclui fluxogramas de diagnóstico e procedimentos de teste que ajudam a identificar a causa de falhas rapidamente.
Manual e catálogo são a mesma coisa?
O manual ensina como fazer reparos (procedimentos e especificações). O catálogo mostra os códigos das peças (part numbers e quantidades). São complementares.
Arquivo enviado por e-mail ou WhatsApp assim que o pagamento for aprovado.
📱 WhatsApp: (62) 998467503
✉️ E-mail: contato@catalogoeservico.com.br










