- À vista Total:
- 2x Total:
- 3x Total:
- 4x Total:
- 5x Total:
- 6x Total:
- 7x Total:
- 8x Total:
- 9x Total:
- 10x Total:
- 11x Total:
- 12x Total:
Descrição
Massey Ferguson MF32 - Manual de Serviço para Colheitadeira
📋 Especificações do Material
📖 Descrição do Manual
Execute reparos corretos na sua Massey Ferguson MF32 usando este manual detalhado. Cada procedimento foi verificado para garantir resultados profissionais.
Reduza o tempo de diagnóstico com o índice navegável por sistema. O manual apresenta fluxogramas de diagnóstico, valores de referência e procedimentos de teste.
Além disso, este material com mais de 817 páginas cobre desde a manutenção preventiva até reparos complexos dos sistemas de colheita, transmissão hidrostática 4x4, motor SISU e toda a parte elétrica e hidráulica da máquina.
A Massey Ferguson MF32 é uma colheitadeira de grãos robusta, equipada com motor SISU de alta performance e transmissão hidrostática com opção 4x4. Desenvolvida para atender produtores rurais que buscam eficiência na colheita de soja, milho, trigo e outras culturas, a MF32 se destaca pela confiabilidade e facilidade de manutenção. O sistema de trilha e limpeza otimizado, combinado com plataforma de corte de alta capacidade, faz desta máquina uma escolha frequente em propriedades de médio e grande porte no Brasil.
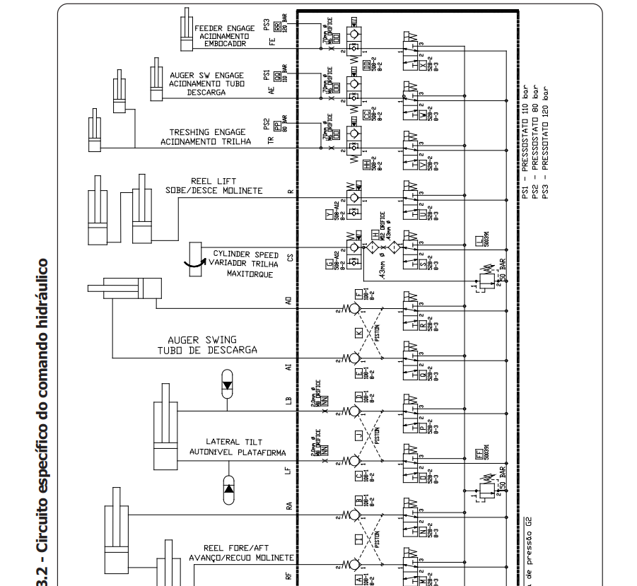
- Pressostato PS1: 110 bar
- Pressostato PS2: 80 bar
- Pressostato PS3: 120 bar
- Ferramenta especial chicote: Nr. 6250081M1
- Circuitos elétricos: 24 diagramas completos (CAN BUS / ISO BUS)
👥 Para Quem é Este Manual
✅ Benefícios do Manual
- ✅ Especificações verificadas - evite retrabalho
- 📦 Procedimentos de teste e ajuste completos
- 🛠️ Facilita diagnósticos e reparos precisos
- 🎯 Procedimentos originais Massey Ferguson verificados
- 📐 Diagramas e esquemas de alta definição
- 🔢 Valores de torque e especificações técnicas
📚 Conteúdo do Manual - Seções Incluídas
⚖️ Manual de Serviço vs Catálogo de Peças
- ✔ Procedimentos de reparo passo a passo
- ✔ Especificações técnicas e tolerâncias
- ✔ Diagnóstico e solução de falhas
- ✔ Valores de torque e ajustes
- ✔ Esquemas elétricos e hidráulicos
- Ideal para: FAZER REPAROS
- ✔ Part numbers originais
- ✔ Vistas explodidas dos conjuntos
- ✔ Quantidades por montagem
- ✔ Referências cruzadas
- Ideal para: COMPRAR PEÇAS
Precisa também dos códigos das peças? Veja o Catálogo de Peças →
Veja também: Manual do Operador MF32 →
Processo 100% digital. O arquivo PDF é enviado por e-mail ou WhatsApp assim que o pagamento for confirmado. Comece os reparos em minutos.
Chega de improvisar e danificar peças. Com o manual correto, cada reparo sai certo de primeira.
Cliente Verificado: "Me chamaram no Whatsapp, recebi o material rapidamente, tudo certinho, recomendo, muito eficiente!"
Perguntas Frequentes
Como recebo meu catálogo digital após a compra?
O arquivo em PDF é enviado diretamente para seu e-mail ou WhatsApp em poucos minutos após a confirmação do pagamento.
Posso acessar o catálogo em diferentes dispositivos?
Sim, os arquivos PDF são compatíveis com computadores, smartphones e tablets, podendo ser acessados de qualquer lugar.
O catálogo é atualizado com novas versões?
Sim, enviamos atualizações sempre que houver revisões ou novas edições disponíveis para garantir que você tenha a versão mais recente.
Quais são as formas de pagamento aceitas?
Aceitamos Mercado Pago, cartões de crédito, boleto, PIX e outras opções seguras para facilitar sua compra.
Posso solicitar suporte se tiver dúvidas ou problemas?
Claro! Nosso suporte está disponível via WhatsApp e e-mail para ajudá-lo antes e após a compra, garantindo sua satisfação.
Entrega Digital Imediata
Este produto é um arquivo digital em formato PDF.
O envio é realizado automaticamente após a confirmação do pagamento,
diretamente no e-mail e WhatsApp do cliente.
💡 Não há custos adicionais de envio.
Receba seu material em poucos minutos, com segurança e praticidade.
